全国统一学习专线 8:30-21:00
来源: 银河教育 编辑:佚名
大家好,我叫董心桥,过了青春年少却又不甘平凡得我,来到了银河教育。
没有谁的成功不是用汗水换来的,来到了这里才发现自己以前的时间是用来浪费的,而这里的学习氛围是我想要的,同学们都很刻苦,这使得我更加逼迫自己积极向上,像小草一样努力生长,像小鸟一样迎风飞翔!
工作和生活一样,都要充满阳光,我想一直保持着那颗年轻的心,敢做敢闯.
好的设计是需要经理时间来磨练的,一个成功的设计师也是一样,用心沉淀出更好的作品。
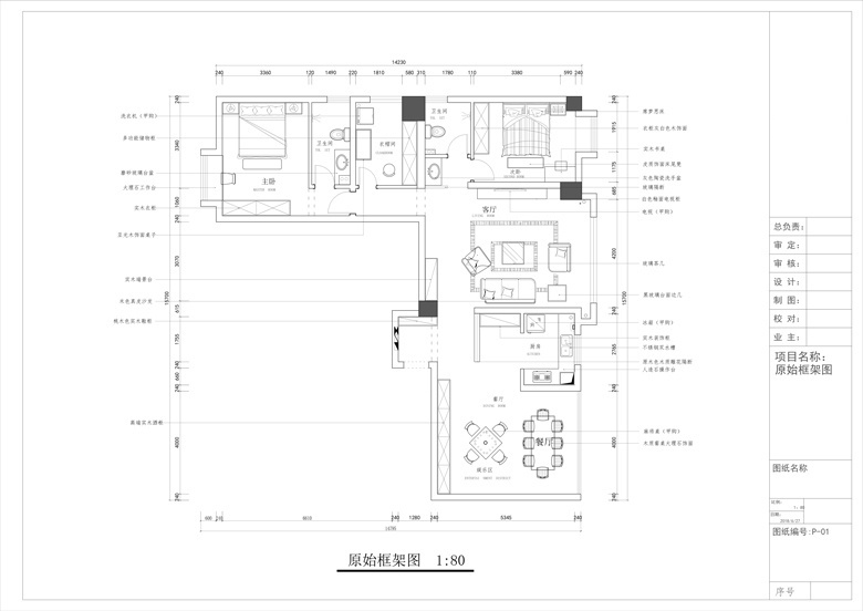
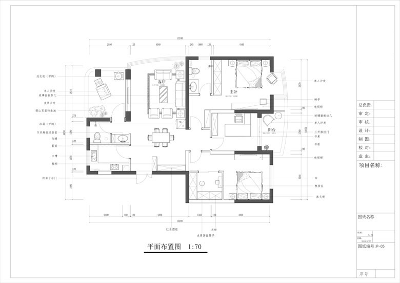
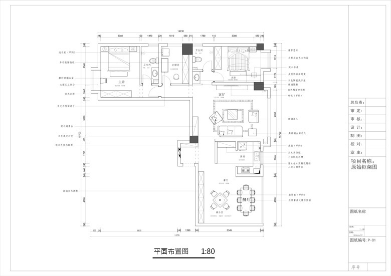
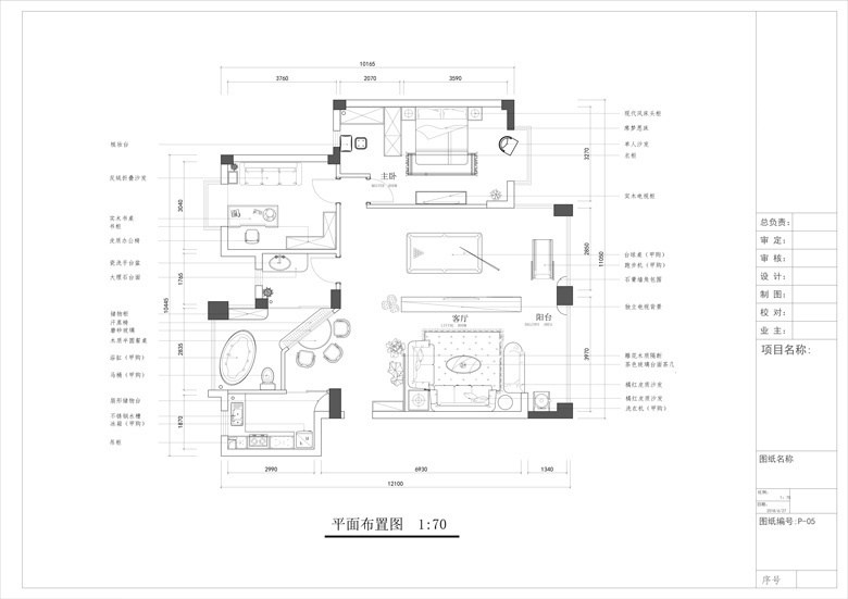
此户型是四室一厅一厨两卫改成两室两厅一厨一卫,这个跨越很大,为了营造一种除睡眠以外更加大气开放的公共空间,兼具功能和美观。宽阔的卫生间我为它加上了隔断汗蒸的功能。娱乐客厅放一张台球桌一个跑步机,尽显出高雅和健康的生活品质。
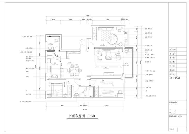
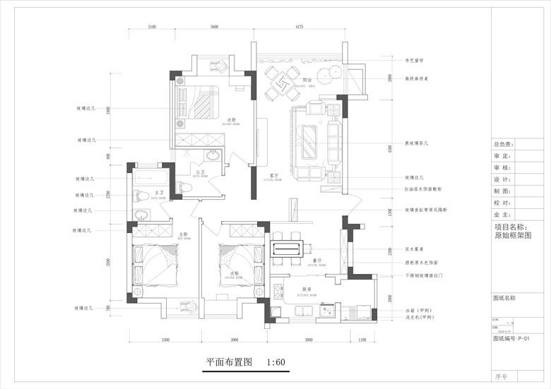
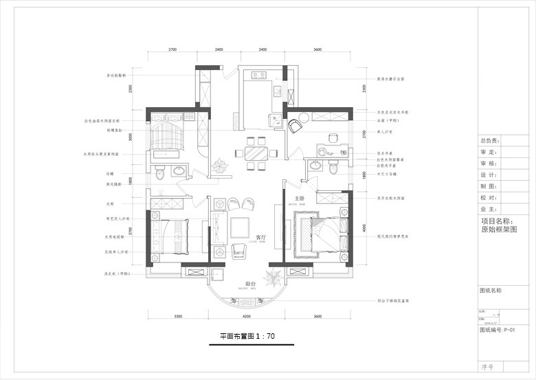
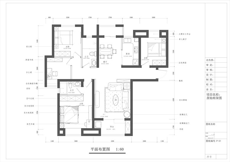
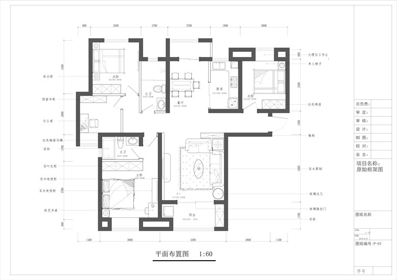
下面是平常做的一些平面方案,有很多不足,但是都是认真去做了,希望能在以后的工作学习中得到更多的成长。








我们是带着枷锁在跳舞者,挑战自我的同时也是肩负着客户获取家的幸福感的责任!这一点都不为过,所以我认真对待每一次任务。
下面是平时学习是的场景,这些都是弥足珍贵的记忆哦!
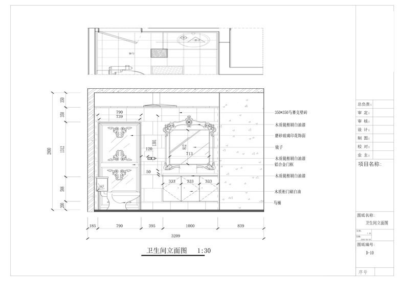
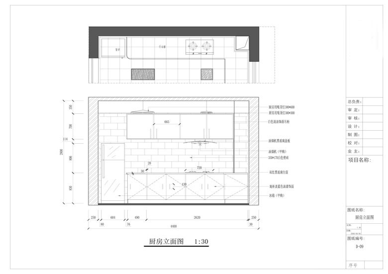
以下是自己做的立面图展示:




学习是一件很苦的事情,但是只要钻进去了会发现很多以前未曾发现的趣味,经过这段时间的磨砺,我们都懂得了如何去处理工作学习中的一些负面情绪,实时调整好自己,把的一面展现出来,毕竟认真工作时的自己才是最帅的!

学习的时光已经快接近尾声了,心中无数次想象着自己今后踏上设计岗位的景象,满怀期待,希望在这里所学,走入社会能有所用,也祝愿每个同学都能成为一名真正的设计师,更好的服务社会,创出自己的一片蔚蓝天空!
在这里感谢每一位老师的辛劳付出,也感谢每一位同学的热情互助!使得我们成长的更快!