手机访问

手机扫一扫

|投诉/建议
400-689-2779

全国统一学习专线 8:30-21:00

杭州室内设计培训学校 从入门到精通

杭州室内设计培训学校 从入门到精通

上课方式:直播,面授
班级类型:小班
上课时段:白天班,晚班
价       格:¥询价

杭州室内设计培训学校 从入门到精通课程详情

关键词:杭州室内设计培训 室内设计学习

复合型室内设计师,竞争优势更大

让学员精通技能操作的同时,也具备项目分析、方案设计、洽谈等各项能力,培养学员成为复合型设计人才。

疑问

什么是室内设计的撞色?

为什么要学习室内设计?

为什么一定要学好室内设计?

学室内设计行业还有前途吗?

为什么很多人改行学室内设计?

掌握技能 掌握技能

CAD制图、3Ds Max效果图、VR全景、软装设计、柜体定制。

具备能力 具备能力

家居风水、施工工艺、工程预算、项目分析、客户治谈。

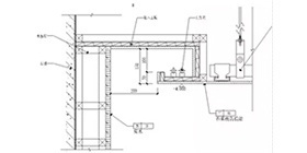
一、CAD软件操作,熟练绘制施工制图

将基础的理论知识与实际案例操作相融合,你将掌控CAD操作,擅长各种施工图绘制。还能独立完成毛坯房预算清单制作。

平面施工图

平面施工图

立体施工图

立体施工图

节点样施工图

节点样施工图

二、3Ds Max软件应用玩转室内效果图

深入学习3Ds Max软件应用,学习各种空间效果图输出,整体水平达到精通阶段。

家装空间

家装空间 室内布灯及V-Ray、天花建模及V-Ray渲染、物理摂影机及這染流程、室内空间建模及V-Ray渲染。

工装项目实操

工装项目实操 完善餐饮空间建模、餐饮空间方案制作效果图、完善案例效果图、细节调整、完善餐饮空间模型、材质灯光处理。

建模操作进阶

建模操作进阶 沙发建模方法、家居切景建模考核、常凡椅子建模方法、产品渲染及V-Ray材质进阶、场景渲染及V-Ray材质进阶。

三、具备柜体定制能力提升空间利用率

精通家装方案设计,具备户型布局、家居风水、方案汇报等能力;根据不同房型和需求定制个性化柜体,让空间利用达到极限值。

橱柜定制

橱柜定制

上下床定制

上下床定制

电视柜定制

电视柜定制

书桌书柜定制

书桌书柜定制

鞋柜定制

鞋柜定制

立面施工图

立面施工图

四、了解潮流元素掌握各种软装风格

掌握色彩搭配原则,了解软装产品款式、材质,清晰软装主题设定、运用。

现代简约风格

现代简约风格

北欧风格

北欧风格

新古典风格

新古典风格

地中海风格

地中海风格

五、施工现场实战

帮助学员,熟悉装修工程具体施工工艺,能更好的让设计作品落地以及现场施工指导。

水路改造工艺

水路改造工艺

木作工程工艺

木作工程工艺

泥工工程工艺

泥工工程工艺

油漆工程工艺

油漆工程工艺

相关新闻 更多 >